Construction Underway!
Coming Summer of 2025!
Henry County Event Center
In effort to showcase Henry County agriculture, our initiative is to raise the necessary funds to construct a building on the county fairgrounds. We envision this new construction to be versatile enough to host year-round events that would bring unity and economic development to our community. Events hosted in the new facility could include livestock shows, trade shows, educational events, demonstrations, trainings, weddings and much more.
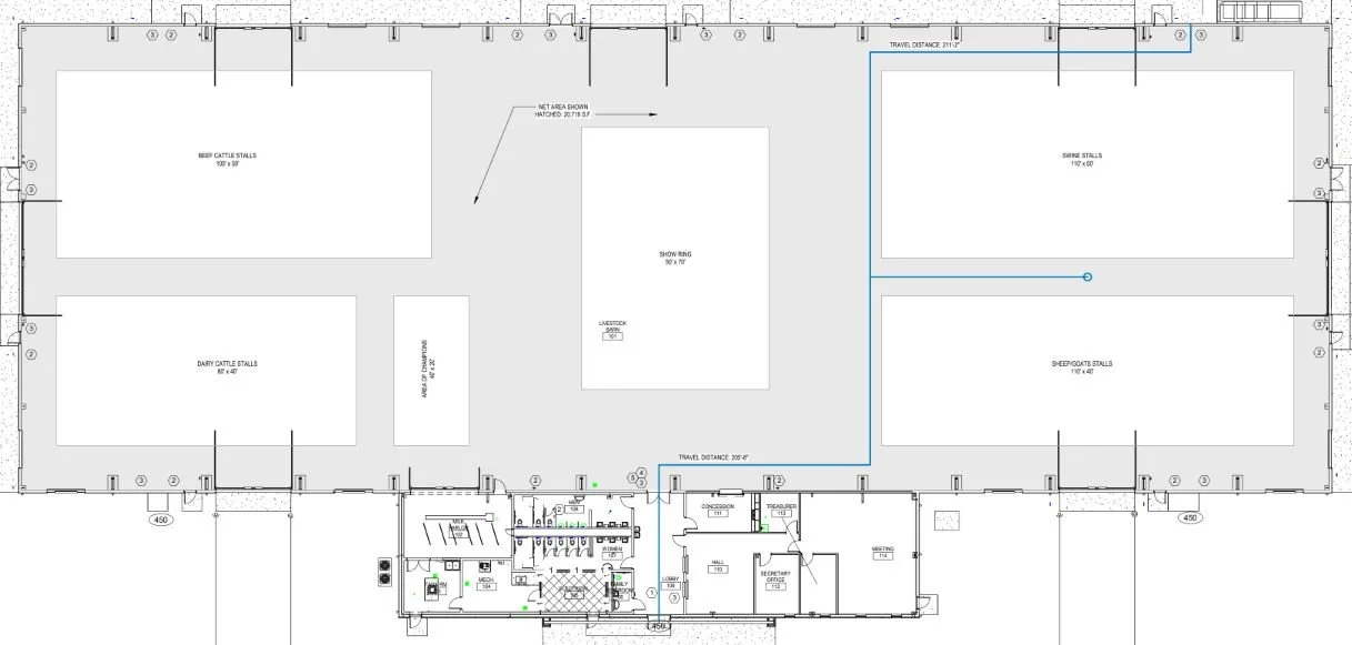
Open Floor Plan Building • Proposed 2025 Henry County Fair Building Layout
Thank You to Our Supporters
Event Center Updates
Questions from our Community
-
A contractor for the selection of the new Event Center will be selected mid August 2024. The Senior Fairboard and Morgan Parcher, OSU Extension Agent, have developed an alternative plan for livestock shows during the 2024 Fair. The new Event Center is projected for completion prior to the 2025 Henry County Fair.
-
The show arena and livestock barns are deteriorating and do not serve our community to host year-round events. During the fair, the new building will have designated areas for a show arena, and stalls for goats, sheep, hogs, beef, and dairy animals, along with wash rack space for all species in the building. The open layout design will create opportunities to host various events throughout the year such as conventions, job fairs, demonstrations, meetings, livestock shows, sporting events, and emergency needs.
-
The building will be located on the Northeast corner of the fairgrounds, in the current parking lot, East of the Horse barn. Other locations were discussed, however, the other options did not accommodate all proposed building needs. The Fairboard has voted and approved this building location.
-
The current barns and show arena will be torn down and that space will be reconfigured to accommodate parking and camping spots. The fairboard will decide how the spots are reassigned. We anticipate having a similar number of camping spots with this change. Further questions regarding camping can be directed to the Senior Fairboard.
-
The existing parlor equipment will be moved to the new building, located near the main entrance.
-
The building will be 125’ by 350’ with an addition to accommodate a new Senior Fairboard office, dairy parlor and restrooms.
-
The HCAIA, Senior Fairboard, and the County Commissioners will be working congruently to maintain and facilitate the use and rental of the building year round. An event center manager position is being developed to coordinate these year round responsibilities.
-
Small animal pens can be sponsored for $500/pen or cattle panels can be sponsored for $1,000/panel. Visit our website at henrycountyag.com to make a donation today or complete a donation form, available at the HCAIA booth in the Ag Hall.
-
Visit our website at henrycountyag.com to make a donation today or submit a pledge form. We accept cash, check, credit card, multi-year pledges, labor, material, and other in-kind donations. We are a 501c3 organization so all donations are tax deductible.
























